BasisBoligen - Små boligtyper til unge
Danmark
2015

Billige boliger med maksimal bokvalitet

Basisboligen

En lille, billig bolig. Det er ikke længere så nemt at finde i København. Og antallet falder på grund af renoveringer, sammenlægning af lejligheder og den generelle prisudvikling på boligmarkedet. Derfor er det blevet endnu mere vanskeligt for grupper med lav betalingsevne at finde en bolig med en husleje,
de kan betale.

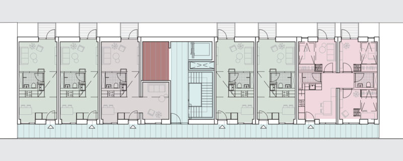
Den udfordring har Københavns Kommune og KAB taget op, og derfor fik Vandkunsten opgaven at udvikle Basisboligen, en lille bolig på ca. 30m² inklusiv køkken og bad til en husleje på ca. 3.200 kr. om måneden.

Basisboligen er tre typer små boliger med optimale kvaliteter til lav husleje. Fælles for dem alle er en ambition om at skabe stor rumlighed, optimal brugsværdi og gode lysforhold, kombineret med stor fleksibilitet i organiseringen af boligudbuddet.

Kompakt, billig og fuld af sociale og rumlige kvaliteter.

Tre nye boligtyper under overskriften 'basisbolig' tilbyder maksimal bokvalitet i minimale rammer.

Hems og opbevaring under loftet

Forskellige adgangssystemer

De tre boligtyper er udviklet til forskellige adgangssystemer, for at demonstrere byggeprincipper, der kan tilpasses forskellige lokaliteter. De kan være fritliggende, som punkthuse, eller som infill i tæt bymæssig kontekst.

En lille enhed med mange anvendelsesmuligheder

De tre boligtyper kan alle udvikles både til individuelle boenheder, til parboliger og til venneboliger, og vi kan implementere fællesfunktioner, der kan variere i omfang og tilpasses lokale forhold.

Projektfakta

Bygningsdata

Projektnavn: BasisBoligen - Små boligtyper til unge

Kategori:Boliger, Boliger for unge, Forskning & udvikling, Træ

Bygherre: KAB og Københavns Kommune

Beliggenhed: Danmark

Dato: 2015

Status: Afsluttet

Opgaven

Program: Minimalboliger

Aktivitet: Konceptudvikling

Opgavetype: Opdrag, udviklingsprojekt

Konstruktionssystem: Boksbyggeri

Kontakt: Jan Albrechtsen, jal@vandkunst.dk

Kontaktgruppe:Pernille Schyum Poulsen, Marie Hildebrand Frederiksen, Jan Albrechtsen

Medarbejdere: Luna Fruensgård