Nyt Kvindekrisecenter Bornholm
Bornholm
2024

Et favnende gårdsrum

Med et program som dette, må vores vante metode vendes på hovedet, for vi tvinges til at se vores typiske tilgang med nye øjne. Der hvor vi typisk søger at skabe de fysiske rammer for en boligbebyggelse, har vi med den nye krisecenter på Bornholm fokuseret på de uformelle møder i hverdagen. Vi har bestræbt os på at give plads til det gode naboliv. Her vil mødet i trappeopgangen, gården eller ved cykelstativet være omdrejningspunktet for den arkitektur vi ønsker at skabe.

Det handler om at skabe trygge rammer omkring et hverdagsliv, som er skrøbeligt og nyt. Der vil være et behov for overskuelige, forudsigelige rammer. Her er ikke plads til overraskelser.

Ved at hente inspiration fra en traditionel Bornholmsk firlænget gård, har vi søgt at skabe en bygning, der favner en tryg gårdhave – hvor man trygt kan lade børnene lege, mens man laver mad, vasker tøj eller bare sidder.

Forslaget rummer også en ambition om at holde de byggetekniske løsninger på et så enkelt niveau, at vi i størst muligt omfang sikrer midler til materialer, rumlige kvaliteter og bedst mulige dagslysforhold i inde- såvel som uderum.

Vi tegner rammerne omkring et trygt og kvalitativt hverdagsliv i en svær overgangstid, samt et godt og trygt arbejdsmiljø for personale og frivillige.

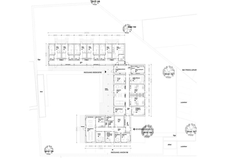
Gårdsrum
Programmets tre hovefunktioner placeres på grunden i én etage og skaber et trygt og omsluttende uderum. Et redskabs- og cykelskur udgør den fjerde længe. Grebet er pragmatisk og robust.

Dagslys
Der er ikke tegnet bygningskroppe med en større dybde end 12 m.
Ved at arbejde bevidst med tagets geometri, får vi for små midler mulighed for at opnå stor effekt med hensyn til dagslys og overdækket udeareal, hvor det er ønskeligt.

Modularitet
Alle 3 længer udføres som modulleverance.
På den måde sikres hurtig og effektiv montage på pladsen samt tidlig sikkerhed for pris. Det betyder en maksimal højde på 4,1 m af det samlede modul.

Vi har dimensioneret bygningskroppene fornuftige ift. at udføre dem som rumstore boks-moduler. Det er altså forudsat, at konstruktionen udføres i træ. Dette gør, at vi har taget et afgørende valg ifht. bæredygtighed i udgangspunktet.

Facaderne beklædes med rødmalet træ under store tagudhæng, hvilket giver en god konstruktiv træbeskyttelse. Træbeklædningen udføres som en blanding af vandrette klinklagte brædder under vinduer og lodret ‘1 på 2’ beklædning herover.
Vinduer udføres som træ/alu, der indvendigt er med klar lak og udvendigt i rå alu med gående partier i en mørk grøn.

De indbygget reoler i træ giver mulighed for såvel opbevaring som siddenicher med kig til gårdrummet både på kanten af boligen og i spiserummet.

Indvendige lysninger, vinduesrammer og terrassedøre udføres i træ, hvilket giver rummet varme og stoflighed.

 

 

Alle husets funktioner forbindes med en gang, som ligger skiftesvis i facaden og i midten af bygningskroppen. Gangen sikrer, at ingen funktioner bliver gennemgangsrum.

Projektfakta

Bygningsdata

Projektnavn: Nyt Kvindekrisecenter Bornholm

Kategori:Boliger, Kultur & institutioner, Landskab, Træ

Bygherre: Kvindekrisecenter Bornholm

Beliggenhed: Bornholm

Bruttoareal: 650

Dato: 2024

Status: Nyt Kvindekrisecenter Bornholm. Projektering pågår.

Opgaven

Program: Kvindekrisecenter

Aktivitet: Nybyggeri og landskab

Kontakt: Emma Hansson, eh@vandkunst.dk

Kontaktgruppe:Troels Trier Mørk, Katrine West Kristensen, Emma Hansson, Asbjørn Staunstrup Lund, Thomas Nybo Rasmussen

Rådgiverteam

Arkitekt: Tegnestuen Vandkunsten

Landskab: Tegnestuen Vandkunsten

Ingeniør: Steenbergs Tegnestue